物件情報
海と光に包まれる、最上階のリノベーション空間 葉山エコーハイツ|stri-ep house flat 葉山一色売マンション
No.2025B012/2026年1月12日(月曜日)

一色の海と空を感じながら暮らす、リノベーション済み最上階2LDK。
4,300万円(税込)
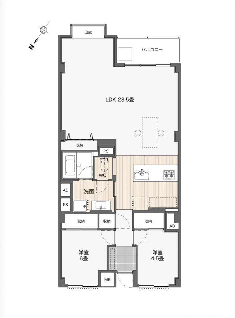
2LDK(LDK23.5畳、洋室6畳・4.5畳)
神奈川県三浦郡葉山町一色
JR横須賀線「逗子」駅 バス15分/「葉山大道」停 徒歩1分
取材記事
間取り図
物件概要
葉山町一色。
海と山、どちらの気配も日常にあるこのエリアで、静かに、心地よく暮らすための住まいが完成しました!
舞台は「葉山エコーハイツ」の最上階・5階部分。
室内はフルリノベーションが施され、光の入り方や素材感まで丁寧に整えられた、開放感あふれる2LDKです。
本物件のおすすめポイント
POINT1
最上階ならではの、明るさと抜け感

住戸は建物最上階に位置し、周囲からの視線を気にせず過ごせる落ち着いた環境。
大きな開口部からはやわらかな自然光が差し込み、時間帯によって表情を変えるLDKが広がります。
約23.5畳のLDKは、家具配置の自由度も高く、
ダイニング・リビング・ワークスペースを緩やかにゾーニングできる余白のある空間構成になっています。
「ただ広い」だけではなく、暮らしの動線や居場所が自然と生まれる、そんな心地よい空間設計ですよ(^-^)
たきもと



POINT2
木の質感が心地よい、穏やかなリノベーション

室内は、白を基調にしながらも、床や壁、造作部分に木の素材感を取り入れた、温もりのあるデザイン。
無垢材の表情が、空間全体をやさしく包み込みます。

壁面には飾り棚として使える造作もあり、
植物やアートを飾ったり、暮らしに合わせた使い方が可能です。
キッチンから廊下、居室へと回遊できる動線も特徴で、日々の家事や生活がスムーズに行えます。
暮らしの動線がいいと、日々の負担も楽になりますよね♪
たきもと
POINT3
コンパクトながら、使いやすい2LDK

間取りは2LDK。
6畳と4.5畳の洋室は、それぞれ寝室・書斎・子ども部屋など用途を選ばず、
ライフステージの変化にも柔軟に対応できる構成です。

水まわりはコンパクトにまとめながらも、動線が整理され、
毎日の暮らしにストレスを感じさせない設計となっています。
ちょっとしたものを吊るせる「吊り金具」や、目隠しになる木の格子などの所々のあしらいも、嬉しいインテリアポイントです。


POINT4
一色海岸を身近に、葉山らしい日常を

物件の周辺には、一色海岸をはじめとした自然豊かなスポットが点在。
散歩やジョギング、海辺で過ごす静かな時間が、日常の一部になります。

POINT5
お買い物もお出かけも便利な国道134号線沿い

物件の目の前の道路は、葉山の主要な道路である国道134号線。
スーパーやドラッグストア、郵便局やコンビニなど生活施設も揃っており、
「自然の中で暮らしながら、日常の利便性も確保したい」
そんな方にとって、バランスの良い立地です。
また、ファッションやインテリアなどの雑貨店、アートギャラリーなど、センスのいいお店も点在。
美味しいパン屋さんやおしゃれなカフェなどもあって、日常に潤いを与えてくれます♪



いかがですか?
永住用としてはもちろん、
都心から少し離れたセカンドハウス・週末拠点としてもおすすめできる一室。
葉山の自然に寄り添いながら、
静かで整った空間に身を置く暮らしを叶えませんか。
長く心地よく住める家をお探しの方にはぴったりですよ♪
たきもと
間取り図

物件概要
- 交通
- JR横須賀線「逗子」駅 バス15分/「葉山大道」停 徒歩1分
- 住所
- 神奈川県三浦郡葉山町一色1750-1
- 物件種目
- 売マンション
- 土地
- 所有権
- 建物
- 専有面積:78.92㎡(壁芯)、バルコニー面積:5.16㎡
- 構造
- RC造5階建/5階部分(最上階)総戸数:117戸
- 築年数
- 1974年9月
- 法令制限
- 用途地域:第1種住居地域
- 設備
- 公営水道・公共下水・東京電力・都市ガス
- その他
- フルリノベーション:2025年12月完了済、大規模修繕:令和4年9月 実施済、ペット:不可、駐車場:空き無し
- 現況
- -
- 引き渡し
- -
- 管理
- 管理形態:全部委託(日勤)、管理会社:長谷工コミュニティ、管理費:14,650円/月、修繕積立金:13,533円/月、自治会費:250円/月


045-873-5792