物件情報
【価格改定】里山担い手葉山の森暮らし | 三浦郡葉山町上山口 売地
No.2025B007/2025年11月6日(木曜日)

にほんの里100選に選ばれた上山口の棚田まで徒歩6分♪
里山風景が残る自然を満喫♪
5900万円
674.50㎡(約204坪)
三浦郡葉山町上山口
JR横須賀線「逗子」駅バス21分 「上山口小学校」停歩9分
取材記事
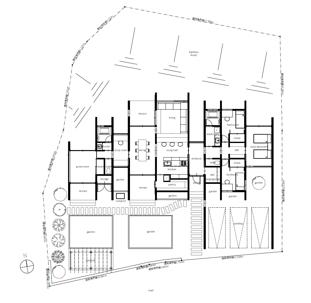
間取り図
物件概要
朝起きて、窓の外に広がるのは高層ビルや渋滞する道路ではなく、畑や田んぼに山の緑。
週末には土をいじり、採れたての野菜を手にして過ごす――。
そんな暮らしに憧れたことはありませんか?

本土地はなんと、674.50㎡(約204坪)!
周辺は見渡す限り山と緑と空の、のどかな田舎の田園風景・・・
この広大な土地と周りの自然環境を生かして、憧れの「土いじり」を思う存分にできちゃいます。




上山口のこの辺りにこれだけまとまった宅地は珍しく、せっかくだからFUDOの三輪さん(※)にこの土地の魅力を最大限生かしたプランを考えてもらいました〜\(^o^)/
※FUDOさんは、土地の歴史やその土地の自然を五感で捉え、最適な環境をつくることに真摯に向き合ってくれます♪







この土地の自然豊かな環境を生かし、敷地北側はプライベート感漂う竹林の景色を楽しみ、南側は畑を設けてガーデニングを楽しめたり、地域の人と交流ができるちょっとしたパーゴラもあります。
平屋建てにして土地の平坦な部分を最大限に使い、一つ一つの部屋が心地よく配置された空間で、各部屋からは周辺の山々の借景が楽しめます。ゲストルームを設ければ、友人や家族も気兼ねなく泊まることができる、、、
なんて夢のある間取りと空間・・・!
工夫次第で、こんな家を建てることもできるんですよ(^ ^)
たきもと
詳細はFUDOさんのサイトにて掲載していますので、ぜひこちらも要チェックです!
里山の間(あわい)にひらく光の洞 | FUDO建築設計事務所
▶︎https://fudo-architects.jp/works/satoyamano-awainihiraku-hikarinohora
※CGはイメージです。周辺の景観は実際とは異なりますので、現地をご確認ください。
葉山町上山口について
葉山町・上山口は、昔ながらの里山の風景が残るエリア。
エリア内には葉山町立上山口小学校があり、地域に根づいた学校生活が営まれています。放課後には田んぼのあぜ道で遊ぶ子どもたちの姿が見られることも。
特に本物件の周辺には、自然豊かな資源がたくさんあります。
生き物や自然との調和を大切にされている、「葉山ハーモニーガーデン」さんには、優しい目をしたお馬さんがいたり、「日本の里100選」にも選ばれた棚田があったり、透明度の高い綺麗な湧水を汲める「おもての湧水」があったり、、、



開店前から並ぶ人気店、蕎麦屋さん「和か菜」も徒歩圏内。
コシがあって香りの良いお蕎麦をいただけて、老若男女問わず賑わっていました。
敷地内や駐車場から美しい棚田を見ることもできます。


東京から1時間ほどでアクセスできる距離にありながら、畑や棚田の田園風景、そして四季折々の木々が季節の移ろいを日常で感じさせてくれます。
自然のそばで自分らしい時間を持ちたいけれど、田舎暮らし過ぎるのはちょっと不安、、 そんな都会の人にこそ、上山口はとってもおすすめの場所なんです!
周辺の情報については、こちらの記事でもご紹介しておりますので、ぜひあわせてご覧下さい♪

本物件の周辺施設情報





その他
- セブンイレブン葉山木古庭 徒歩15分(約950m)
- 横須賀インター車9分(約4.2km)
- 葉山中学校 バス・徒歩約30分(約4.6km)
- 一色海水浴場 車13分(約4.6km)
少しでも気になる!と思った方はぜひ、お気軽にお声掛けください♪
たきもと
間取り図

物件概要
- 交通
- JR横須賀線「逗子」駅バス21分 「上山口小学校」停歩9分
- 住所
- 三浦郡葉山町上山口
- 物件種目
- 売地
- 土地
- 地積:674.50㎡(約204坪)、権利:所有権、地目:宅地
- 建物
- 建蔽率:50%、容積率:100%
- 構造
- ー
- 築年数
- ー
- 法令制限
- 盛土規制区域、法22条区域、まちづくり条例、景観計画、地すべり防止区域
- 設備
- インフラ:公営水道、浄化槽、プロパンガス
- その他
- 既存宅地確認済 ※つまり調整区域ですが建築が可能です。
- 現況
- 更地、一部竹藪
- 引き渡し
- 相談
- 管理
- ー


045-873-5792